Skip to main content
Jim Barker
FOR SALE
$849,000

16004 N Ringtail Trail #236
Fountain Hills, AZ 85268

Land
Land Lot
1.1
Acre Lot
Courtesy: Andrew Beardsley - Silverleaf Realty; Office: 4805026902Phone: 6023993507
Home> Arizona> Fountain Hills> 85268
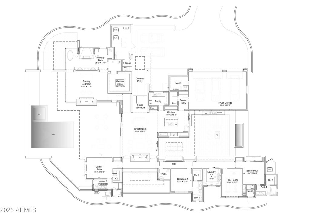
Welcome to an exceptional opportunity in the prestigious, guard-gated Eagles Nest community in Fountain Hills, AZ! This 1.10-acre homesite offers breathtaking panoramic views of the surrounding desert landscape and iconic Four Peaks Mountain. Nestled within a secure, private, and exclusive custom home community, Eagles Nest provides a serene and tranquil setting, while still being conveniently close to local amenities, dining, and outdoor activities. Included with the sale are custom plans for a stunning 4,781 SF contemporary home, designed by renowned PHX Architecture. The plans are thoughtfully crafted to embrace the natural beauty of the land, with open-concept living spaces, floor-to-ceiling windows that frame the spectacular views, and a seamless flow between indoor/outdoor area. Build with Weber Construction, one of the top custom home builders in Arizona, known for their attention to detail and exceptional craftsmanship, or choose your own builder to bring your vision to life. Don't miss the chance to create your dream home on this spacious lot in one of Fountain Hills' most sought-after, guard-gated communities, where luxury, privacy, and nature come together in perfect harmony! See DOCUMENTS TAB for plans and specifications
6810065
Land, Other
Maricopa
1.1 Acres
Private Water
Public Sewer
True https://photos.prod.cirrussystem.net/106/1a811b3e7571e5035be5ff29c006738d/2968911182.jpeg 6810065
Loading...
Data Source: Constellation Data Labs®
The scores below measure the walkability of the address, access to public transit of the area and the convenience of using a bike on a scale of 1-100

Walk Score

Transit Score

Bike Score

Loading...
Data Provided by ATTOM Data®
Courtesy: Andrew Beardsley - Silverleaf Realty; Office: 4805026902Phone: 6023993507
Arizona Regional MLS logo
Information deemed reliable but not guaranteed. Copyright 2021 Arizona Regional Multiple Listing Service, Inc. All rights reserved.
The ARMLS logo indicates a property listed by a real estate brokerage other than this broker.
This content last refreshed on 11/6/2025 2:34 PM CST. Some properties which appear for sale on this web site may subsequently have sold or may no longer be available.
Information is deemed reliable but is not guaranteed.